Ankara NEV201 Ofis Yapısı Projesi
Proje Hakkında
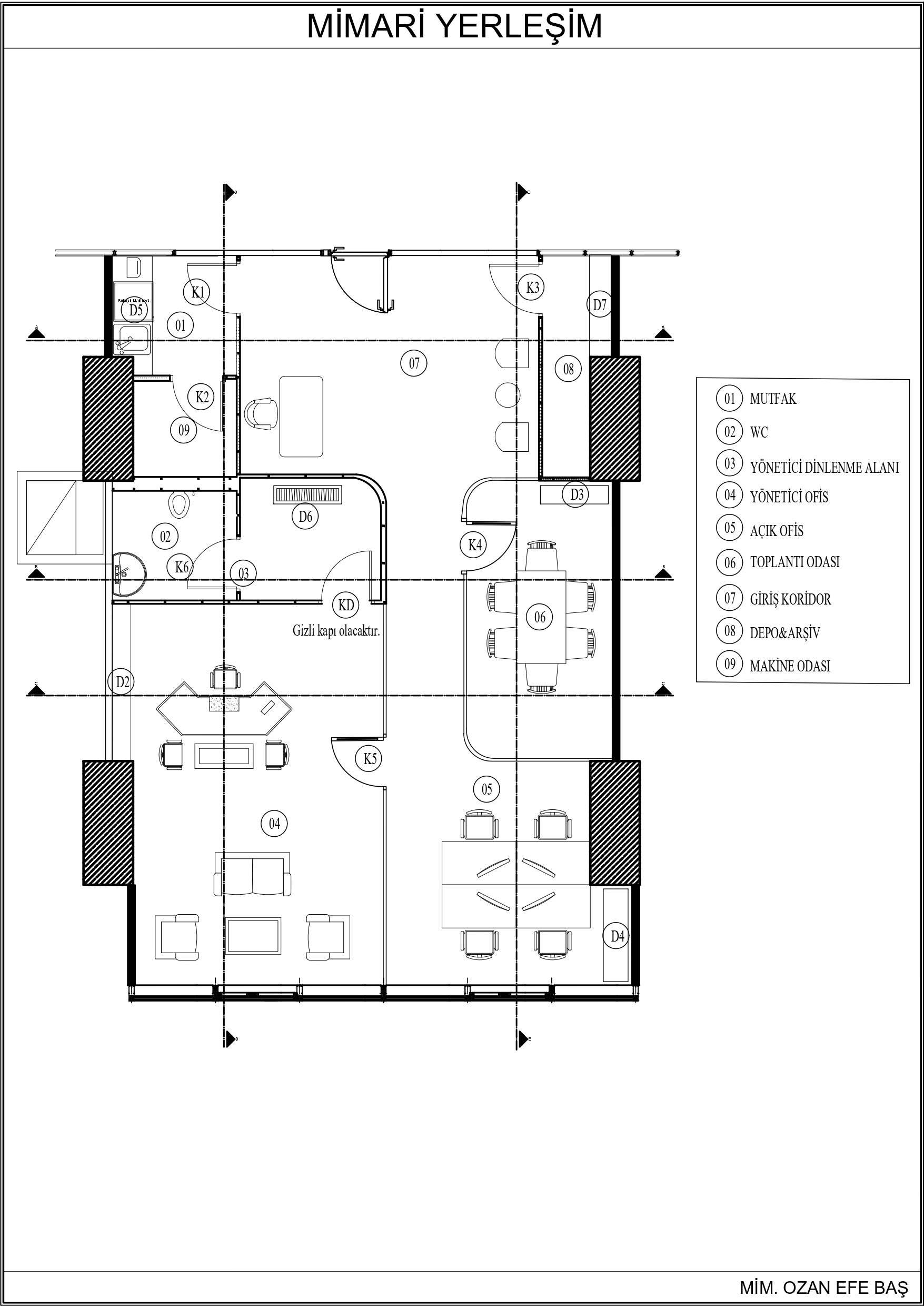
Ankara Çankaya’daki NEV201 Plaza’nın 17. katında, 68 no’lu ofiste hayata geçirdiğimiz proje; kullanıcı konforunu ve estetik tasarımı ön planda tutan özel bir ofis çalışmasıdır. Tasarım sürecinde rölöve ve fizibilite çalışmalarının yanı sıra ruhsatlandırma sürecini de tamamladık. Projenin tüm teknik çizimlerini, 3D modellemesini ve renderlarını hazırlayarak uygulama sürecini destekledik. Baffle tavan sistemi ve düşük metrekarede maksimum işlevsellik sunan çözümleriyle proje öne çıkmaktadır.









×