MOS Kuaför – İstanbul Finans Merkezi
Proje Hakkında
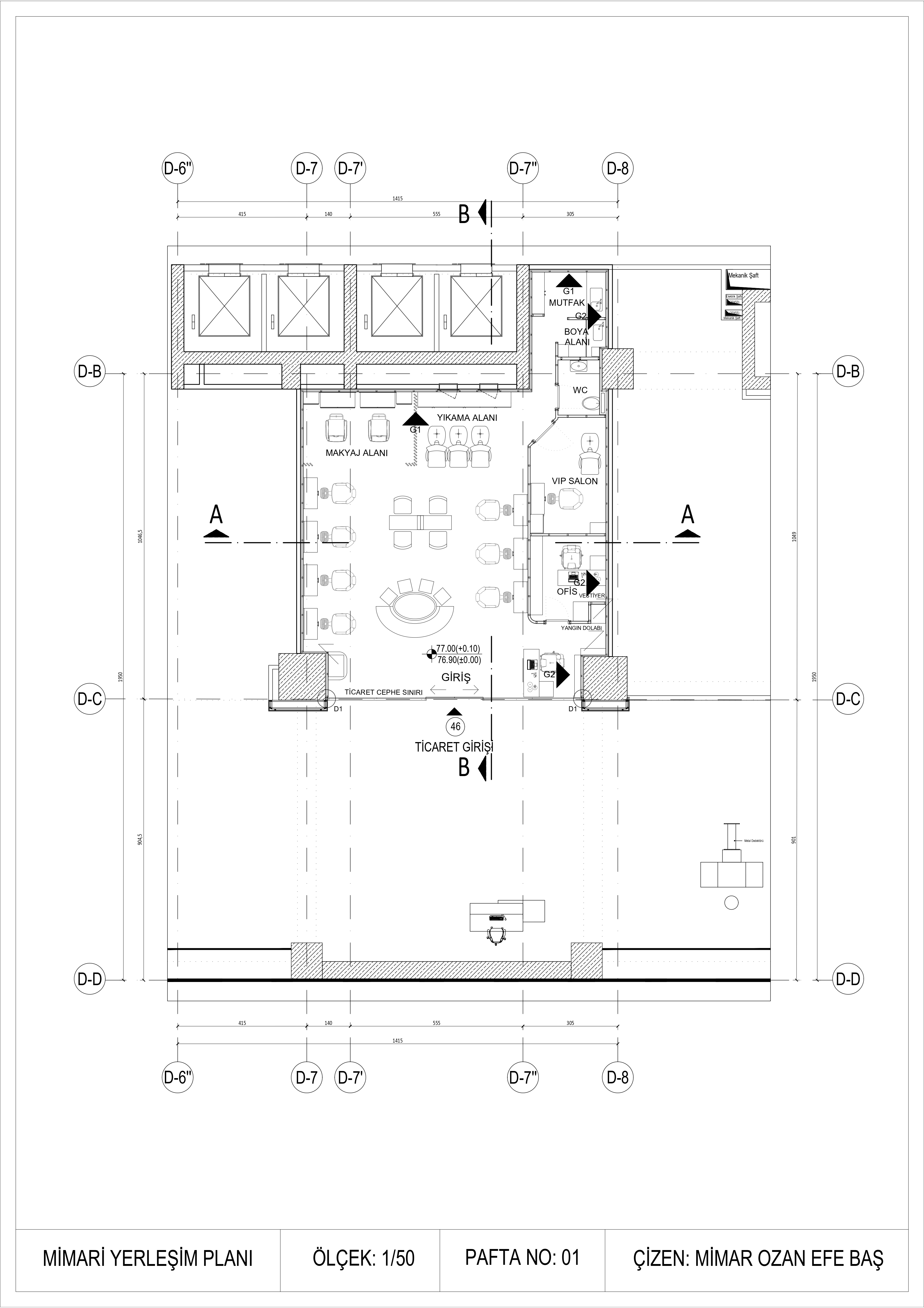
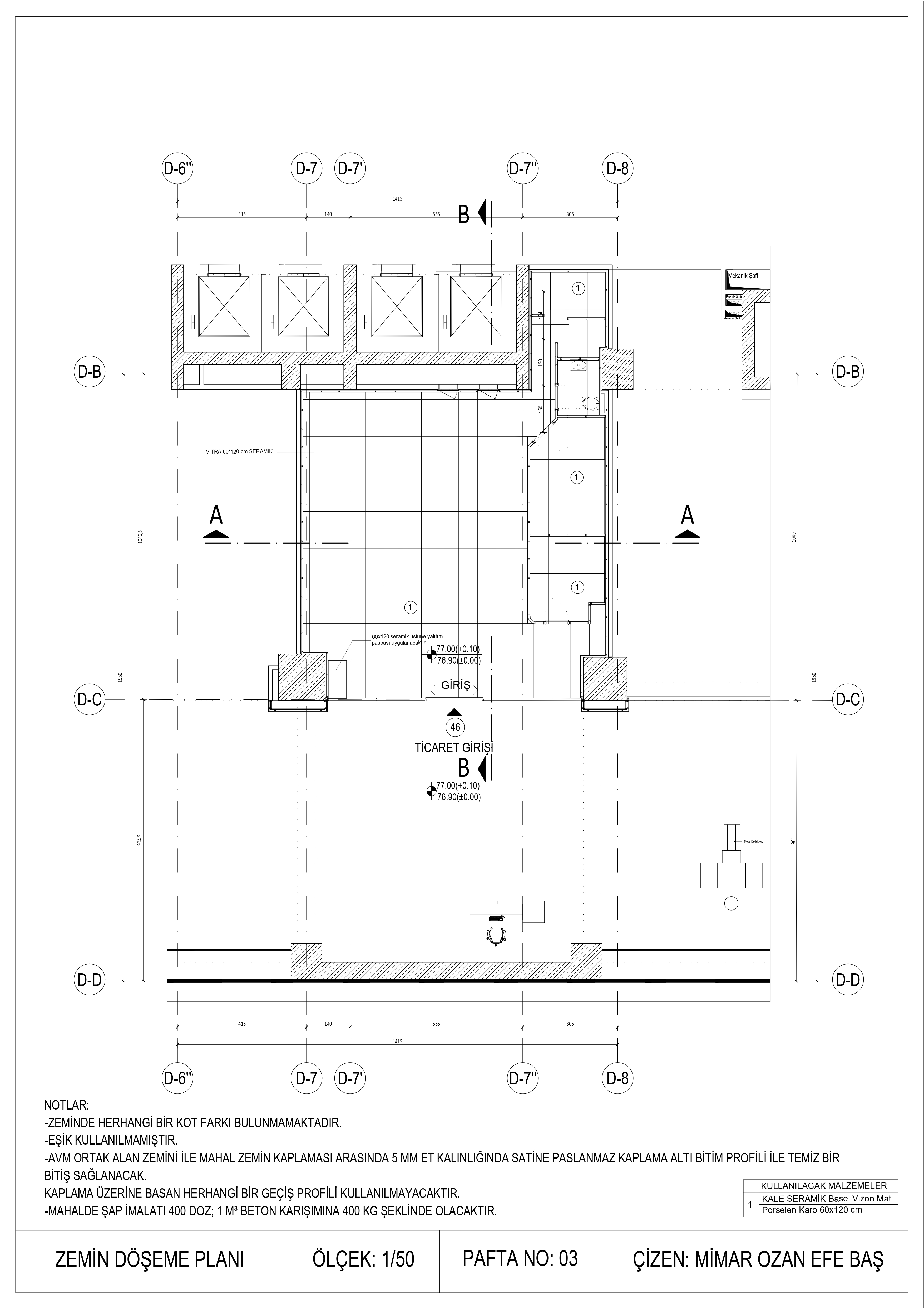
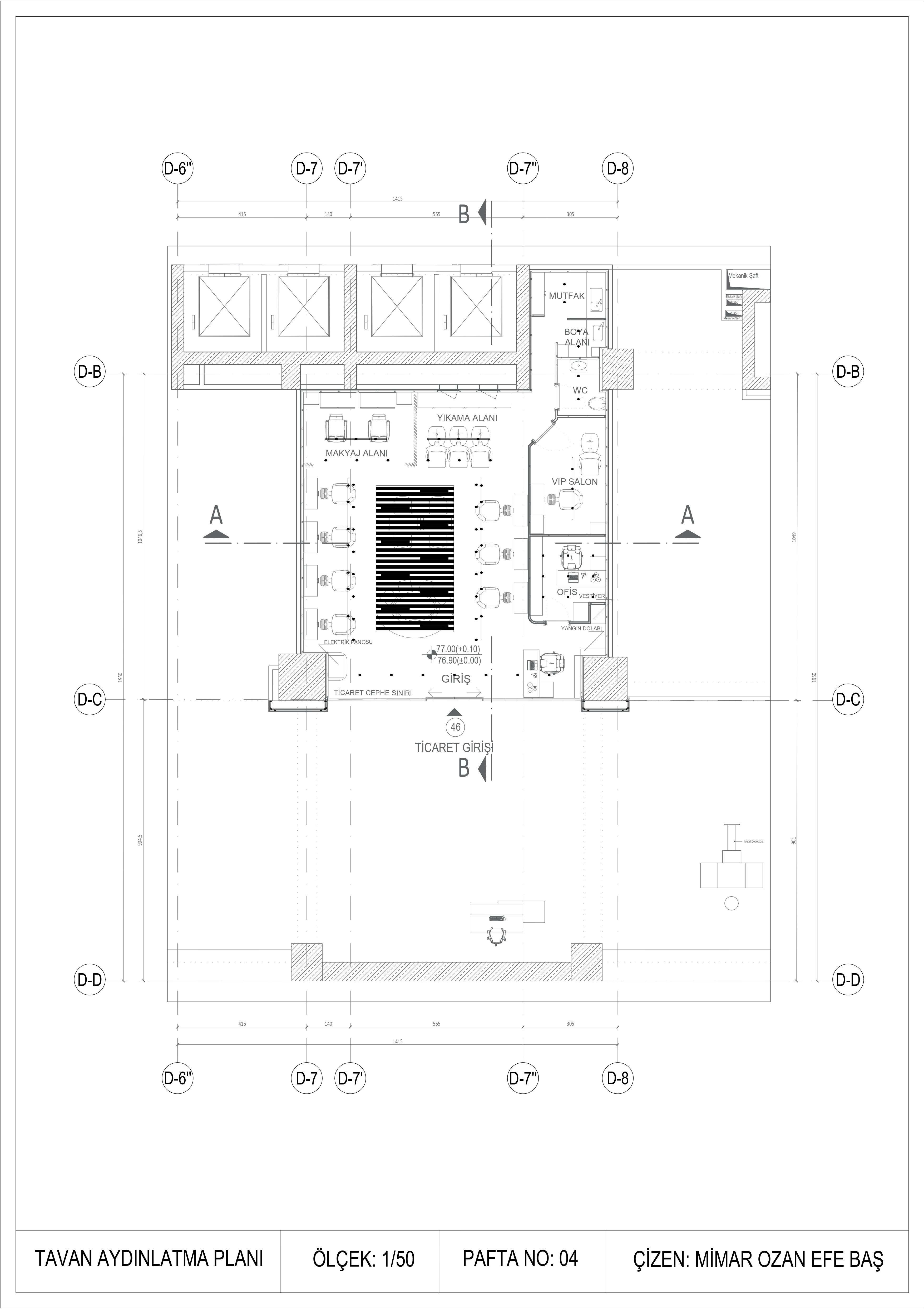
İstanbul Finans Merkezi’nde yer alan MOS Kuaför projesi, konsept tasarımdan uygulamaya kadar tüm süreçleri tarafımızdan yürütülen kapsamlı bir çalışma olarak hayata geçirildi. Proje başlangıcında mevcut mekanın yerinde rölöveleri alınarak mevcut durum detaylı şekilde belgelenmiş, ardından süreç ruhsat projesi formatına uygun olarak mimari proje çizimleri ile devam ettirilmiştir. Mekanın kullanıcı ihtiyaçlarına, fonksiyonel gerekliliklerine ve marka kimliğine uygun biçimde 3D modelleme ve gerçekçi render çalışmaları hazırlanmıştır. Tüm tasarım kararlarının doğru uygulanması için şantiye ve uygulama süreci de tarafımızdan takip edilerek, proje eksiksiz şekilde tamamlanmış ve başarılı bir şekilde hayata geçirilmiştir.





